Proyecto: Rehabilitación y ampliación de edificio catalogado del 1820 en el casco histórico de Sevilla

 Rehabilitación


Proyecto, dirección de obra y projet manager de 45 viviendas y 190 garajes en el casco histórico

2012

Edificio de 6600 m² totales, a rehabilitar 1200m².
Sevilla

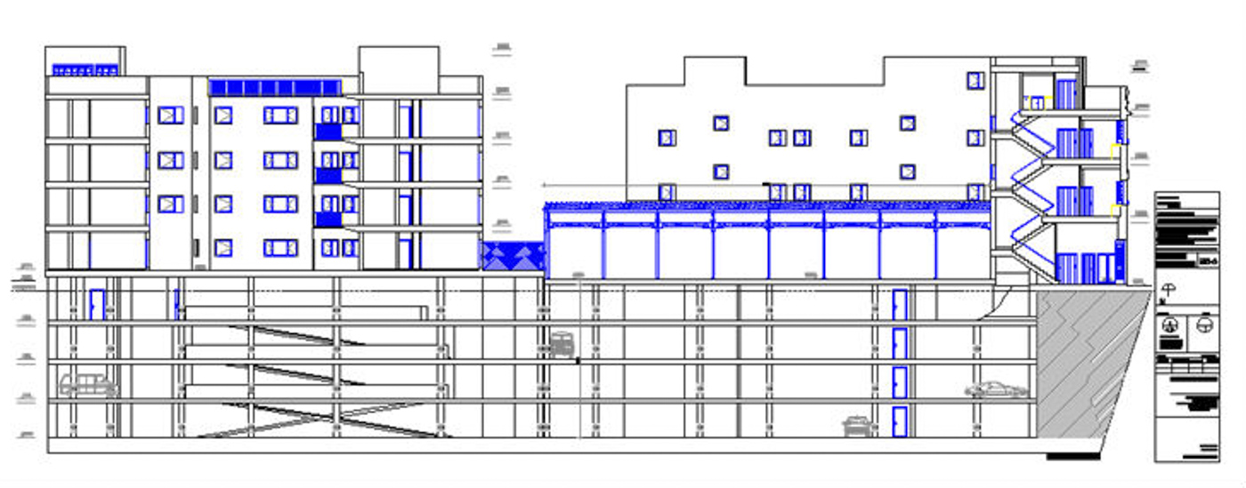
Se sitúa en pleno centro de Sevilla, dentro del tejido urbano más consolidado, y goza de más de cien años de antigüedad. El encargo consiste en proyectar un edificio de 45 viviendas, cuatro sótanos de garaje con medianeras de edificios del siglo XIX, conservar una estructura metálica existente y protegida del siglo XIX, y preservar en la planta baja un espacio para acoger una futura biblioteca.

Proponemos respetar la fachada centenaria, y a partir de ésta proyectar 45 viviendas, una biblioteca, 200 plazas de parking y 6 locales. Para ello se ha de vaciar el terreno hasta cuatro niveles de sótano mediante muros pantalla manteniendo intacta la primera crujía y las viviendas que colindan con el solar (Viviendas del siglo pasado construidas con muros de carga)

Una obra de una alta complejidad donde trabajamos como arquitectos y project managers.

Compartir